中路三號社會住宅商業設施出租公告(店鋪C7)

  • 的圖片

中路三號商業設施出租公告

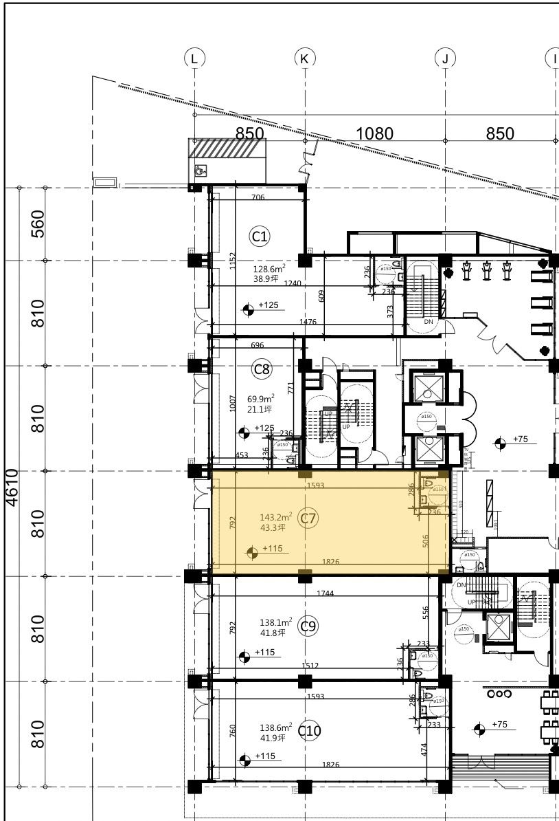
  • 租賃標的物一覽表:

編號

建物門牌

專有面積

(坪)

承租面積

(坪)

每月租金底價

(含稅)

(元/新臺幣)

每月管理費

(含稅)

(元/新臺幣)

應投保火險金額

(元/新臺幣)

使用分區建築物使用項目

店鋪C7

國際路二段581號

45.84

63.11

64,800

5,049

9,505,000

住宅區

G-3

  • 受理申請:
  1. 請填寫「桃園市住宅及都市更新中心商業設施承租登記申請書」並檢附相關文件親送或郵寄至「桃園市住宅及都市更新中心」(330桃園市桃園區力行路300號5F_營運管理組收),並註明【桃園市桃園區中路三號社會住宅商業設施申請】。
  2. 自114年12月25日上午9點至115年1月2日下午5點。如受理申請時間截止,則下架刊登之出租訊息。(本中心保留依實際情形彈性調整招租方式之權利)※本案受理時間順延至115年1月30日下午5點止。
  3. 評比分別依租金價格高低租期長短給予不同權重,評分最高者第一優先承租。
  1. 價格序(60%):月租金額最高者為60分,次者依序遞減5分,最低為5分。
  2. 租期序(40%):總租期最長者為40分,次者依序遞減5分,最低為5分。
  • 租賃期間:累計租期最多不得超過9年。(依承租方需求訂之)
  • 租金:需高於本公告第一條租賃標的一覽表中之底價新臺幣500元起。(惟於租賃期間每屆滿3年時,每月租金調高3%。)
  • 免租裝潢期:2個月(現況點交予承租方)。
  • 履約保證金:2個月租金。
  • 租金支付:
  1. 簽約時,出具已繳納之保證金及第1期管理費繳費單據。
  2. 免租期屆滿後每月租金應於每月15日前,依本中心提供之繳費單或本中心指定之繳費方式一次繳清,不得藉任何理由拖延或拒絕。(繳費期限如遇例假日則順延至次營業日)
  • 租約須辦理公證:費用由承租方負擔。
  • 修繕責任:按現狀辦理出租,租賃期間除天災或其他不可抗力發生之損壞(如結構問題或漏水)由本中心修繕外,其餘日常使用損壞由承租方負責修復或賠償。
  • 提前終止合約:
  1. 承租方於租賃期限屆滿前終止租約者,應於終止前3個月向本中心提出書面申請,經本中心書面同意後本契約終止,承租方應給付本中心相當於保證金一半數額之懲罰性違約金,惟倘未於前開期限通知者,則應以保證金數額做為懲罰性違約金,並應將租金、管理費、水、電、瓦斯、違約金及其他費用繳納至遷離之月份止,實際租用之期間不滿1個月者,以1個月計。
  2. 承租方如欲續租時,須另訂新約,得於租期屆滿3個月前以書面向本中心申請優先續租及議約,租賃期間累計租期最多不得超過9年為限。若承租方逾期未申請即自動放棄優先續約權。
  • 房屋之返還:承租方點交返還租賃標的物時,除本中心認可留置之部分外,其他部分承租方均應負責回復原狀。
  • 車位:如有汽、機車停車位需求,應另向停車場管理單位提出申請使用及繳費等事宜。
  • 預約參觀:有意願者以電話聯繫預約參觀。
  • 承租其他規定:
  1. 承租人依現況辦理承租標的物點交後,本中心不負標的物堪用之責,申請人不得向本中心提出異議及主張本中心負責復原或要求增加、拆除等責任,承租人退租並自負依相關規定拆除室裝回復原狀等責任
  2. 承租人承租後如擬變更瓦斯管線或燈錶容量,應自行委請公用天然氣導管承裝業或專業技師逕向瓦斯承裝公司依公用天然氣導管承裝業管理辦法相關規定申辦變更並負擔相關費用,且應於退租時回復原瓦斯容量(惟經本中心同意者例外)。
  3. 租賃期間如因承租人營業行為於標的物所發生之糾紛,概由承租人負責,與本中心無涉。
  4. 申請人對租賃標的一切裝潢(修)、設置設施設備及改建其安全相關圖說,應依法取得主管機關核發執照及申請審查許可,並其一切費用均自行負擔。
  5. 租賃標的物應投保火險、地震險及公共意外責任險。
  6. 租賃標的及其他相關設備如有消防及安全檢查之必要,應由承租人負責。承租人應依法為適當之安全措施,並接受本中心及主管機關檢查。
  7. 其他未盡事宜詳見租賃契約書及相關附件。

   歡迎洽詢,服務電話:03-3331481 轉211 温先生或轉204 李小姐。

  • 的圖片